


Key Largo Angler's Club
Complete gut renovation of a century-old private clubhouse kitchen
Project Details
Size
4,200 SF
Year
Location
Key Largo, Florida
Client
Key Largo Anglers Club
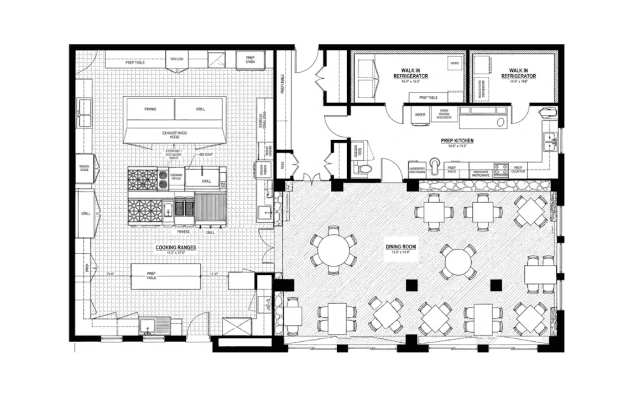
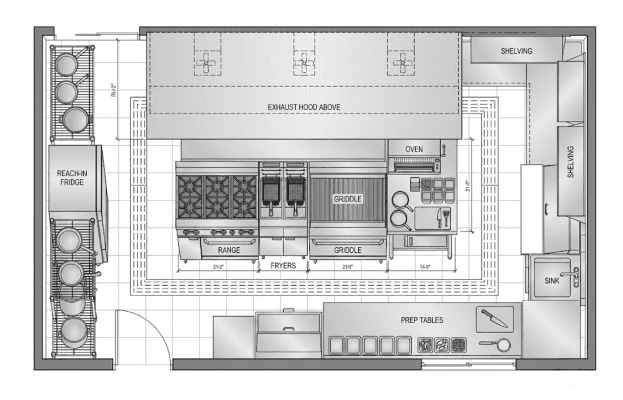
Us Construction completed a full gut renovation of the main kitchen at the century-old Key Largo Anglers Club, modernizing a historic structure while preserving its original character. The work included structural reinforcement, new utilities, upgraded mechanical and exhaust systems, premium commercial kitchen equipment, custom millwork, and coastal-grade finishes, all carefully integrated into a nearly 100-year-old building with irregular existing conditions and limited documentation.

01
PROCESS

02
CONSTRUCTION
A major project challenge was coordinating with a large and highly engaged stakeholder group, including members, committees, and representatives reporting directly to the Club’s Board. Us Construction served as the central point of communication, aligning design, budget, and expectations across multiple decision-makers to deliver a revitalized, efficient kitchen that elevates the Club’s culinary operations while honoring its long-standing legacy.
I am pleased to highly recommend US Construction Company for any commercial project. They recently completed a full state of the art commercial kitchen, in a 135-year-old building. This project had serious structural and logistical challenges. Despite the complexity, they delivered a state-of-the-art kitchen in only six months.
J. Stephen Olsen
Anglers Club Board Member






